Video Block
Double-click here to add a video by URL or embed code. Learn more

DOE NZERH

Habitat for Humanity Single Family Home

This project, in partnership with Habitat for Humanity, focuses on affordability, energy efficiency, and thoughtful design. In conjunction with B.Public Prefab panels, the single family home achieves Department of Energy Zero Energy Read Home.

The panelization of its construction method allows the home to be built substantially quicker than a conventional stick frame home while providing passive level energy performance.

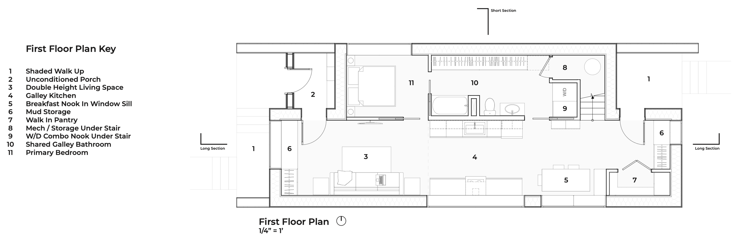
Thoughtfully placed apertures allow for proper lighting, ventilation, and structural integration with standard sized panels. A cast-in-place slab provides radiant heating and a flat roof eliminates un-usable interior volume.

At the center of the homes energy performance is a consolidated HVAC solution which handles heating, cooling, humidity, and air filtration. This minimizes the HVACs complexity.

At the center of the homes efficiency is a singular plumbing wall which is connected to all of the major water hookups. This organizes the plan to revolve around a center nucleus.

Through energy modeling, it was found that the same design using conventional stick framing would nearly double the heating load — translating to an increase in long term operational costs.

With the addition of 18 standard size solar panels, the home achieves Net-Zero Ready standards. More importantly, this keeps operating costs down in the long term.